CONSTRUINDO O PRESENTE e PRESERVANDO O FUTURo.

Soluções modulares, inteligentes e sustentáveis com blocos de plástico reciclado
Um sistema construtivo moderno, inovador, tecnológico e sustentável. Blocos de plástico reciclado injetados em alta temperatura são montados por encaixe sob pressão, sem material colante ou cimentante, formando alvenarias estruturais, de fechamento ou decorativas.
ESSAS ALVENARIAS SÃO ENRIJECIDAS, DA BASE AO TOPO, POR BARRAS DE AÇO QUE PASSAM POR DENTRO DOS FUROS DOS BLOCOS, EM POSIÇÕES DEFINIDAS NO PROJETO.
DE FORMA SIMPLeS, TODAS INSTALAÇÕES DOS MÓDULOS PASSAM POR DENTRO DOS BLOCOS, FACILITANDO ASSIM SUA EXECUÇÃO OU MANUTENÇÃO.






Qualidade
diferenciais
Rapidez


Excêlencia
exemplo de projetos executados




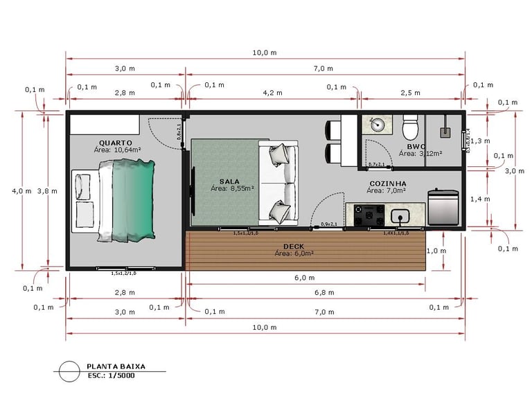
ESTÚDIO MODULAR COM 1 DORMITÓRIO E 33M2
ESTÚDIO MODULAR COM 24M2
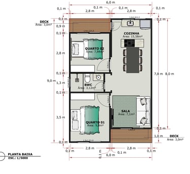
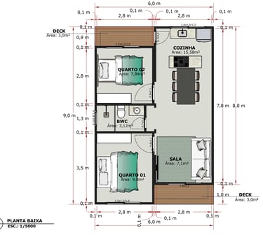
RESIDÊNCIA COMPACTA COM 2 DORMITÓRIOS E 48M2




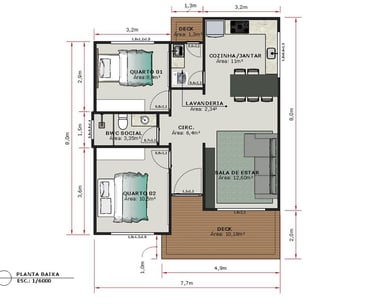
RESIDÊNCIA COMPLETA COM 2 DORMITÓRIOS E 59M2










